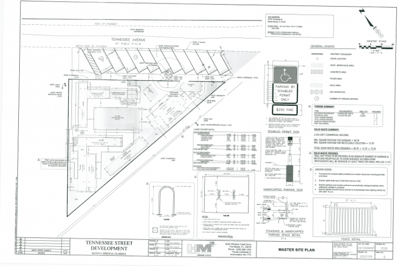
A small but highly creative mixed-use development is underway in Bonita Springs’ downtown district, bringing an innovative, open-air concept to a triangular parcel just off Old U.S. 41 on Tennessee Street. The .23-acre site sits next to Ceremony Brewing and a small commercial strip, both of which are currently undergoing major renovations.
An Open-Air, Mixed-Use Vision
The proposed project combines residential, commercial, and vendor-style uses in a compact, walkable layout. Plans call for a mix of structures that include:
- Two small dwelling-style residential units with storage
- A main building designed for restaurant, bar, office, and storage uses
- Two open-air pavilions
- Two designated vendor pads intended for food trucks or mobile vendors
The development is designed as an open-air environment, taking advantage of Florida’s climate while encouraging interaction between businesses, residents, and visitors.
Built From Repurposed Shipping Containers
One of the defining features of the project is its construction approach. Approximately 80 percent of the structures will be built using refurbished shipping containers, aligning with sustainable design principles and reinforcing the industrial aesthetic envisioned for the site.
Rather than heavily modifying the containers, the developer plans to preserve much of their original character — including existing colors, graphics, and markings — to create a bold, urban look. The containers will be massed and arranged to add visual interest while maintaining a scale that fits comfortably within the downtown setting.
To further connect the project to its surroundings, the buildings are proposed to feature historically inspired murals, drawing from old Florida and vintage postcard imagery. This blend of history and modern reuse is intended to create both visual interest and a sense of place.
A Small Site With Big Impact
Though modest in size, the project aims to make a noticeable impact on downtown Bonita Springs by transforming an underutilized parcel into a lively, artistic destination. With its mix of residential units, dining and commercial space, murals, and food vendors, the shipping container development reflects the city’s broader push toward creative, walkable, and experience-driven growth.
The final site plan for the project has now been approved, and site inspections were completed last week. The development’s building permit is currently under review, and construction is expected to begin very soon.
To stay up to date on this project – along with other local development news, neighborhood updates, and upcoming events – be sure to sign up for our newsletter!





Very happy about the building material being used! Picture looks like an amazing use of space…looking forward to seeing the finished project!